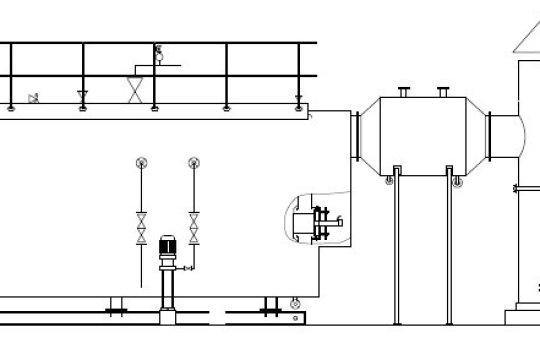
EPCB BOILER является пофессиональным котельным производителем. были посвящены производству и продаже промышленных котлов более 68 лет. Наши основная продукция : угольные котлы, газово- жидкотопливные котлы, биомассовые котлы,электрические котлы и котлы для электростанции.

